

AI-Powered ADU
Feasibility Reports
Unlock your property's potential with AI. Get instant permit checks, accurate cost estimates, and data-driven design & market insights.

Say Goodbye To permit headaches, days of research, back-and-forth, costly overruns
From Address to ADU Plan


AI Feasibility Analysis
Zoning Intelligence for the Pros.
Instant parcel-level zoning analysis, setback rules, and buildable area. Your team spends less time in municipal code and more time closing projects.
Book ADU Pilot DemoPro Lead Qualification
Turn feasibility into your best sales tool.
Give every client a clear financial picture before they even ask. Instant cost estimates, ROI projections, and financing options.
Book ADU Pilot Demo

Permit Risk Prevention
No surprises at the permit counter.
We don't guess. ADU Pilot cross-verifies zoning codes, GIS data, and local ordinances so every rule in your report is verified and not assumed.
Built for Every Role
in ADU Projects

Architects
Design More. Dig Less.
Skip weeks of zoning research and get instant, buildable site analyses so you can focus on design.

General contractors
Bid Smart. Avoid Surprises.
Get zoning constraints and site conditions upfront so you can quote with confidence.

Developers & Investors
Move Fast. Miss Nothing.
Flag feasibility hazards before permit application so every dollar is backed by data.
What industry leaders are saying
"We found it very helpful for quickly ascertaining and summarizing the property facts and building regulations specific to the property to determine recommended options for the build. We found the reports (Feasibility and Marketing) very helpful. ADU Pilot provided us with an internal document containing more detail for the contractor/builder and another document we can offer the client that concisely summarizes the key points for making an informed decision about their property investment. What would normally take us several days or weeks of research only took a couple of hours to generate. This tool would significantly decrease property research costs for potential build projects and allow us to offer clients a quick turnaround on feasibility questions."
Christine Hess
J. Carr Contracting
Simple plans
for serious work
For Homeowners
I want to build an ADU
- Zoning & permit eligibility
- Hidden property risks
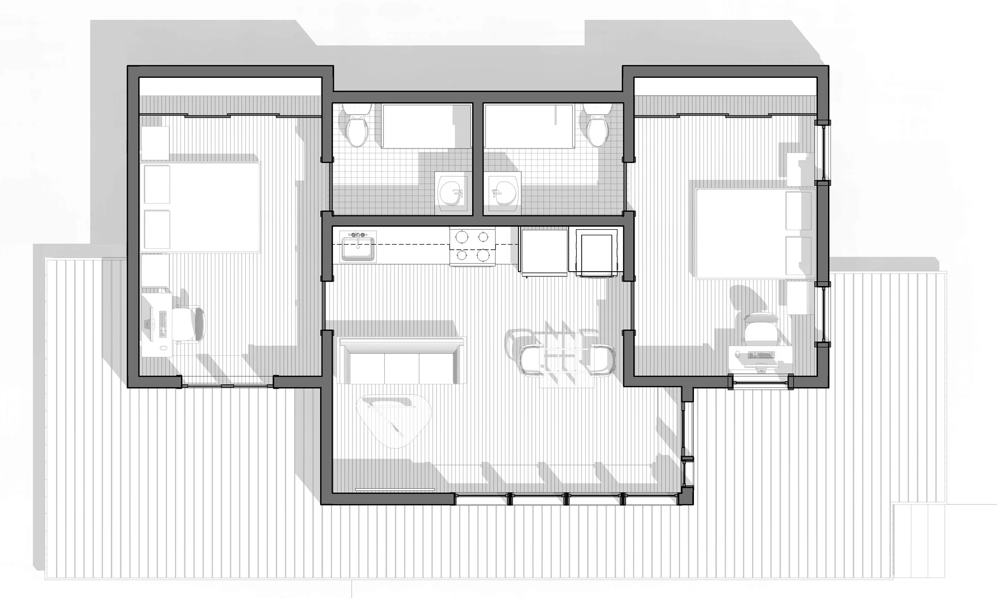
- Optimized size & floor plans
- Cost estimates & ROI projections
- Shareable PDF
For Professionals
I build ADUs for clients
- All Homeowner features, plus:
- Advanced feasibility analysis
- Custom branded reports
- Instant sales lead qualification
- CRM & custom API integrations
ADU Insights & Resources
ADU Pilot is trusted and endorsed by




